Titan Homes & Design - Renovations, Interior Design, New Home Construction
Titan Homes & Design - Renovations, Interior Design, New Home Construction
Project Portfolio


Double car garage addition
Completed kitchen renovation

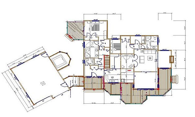
Tiny Township - Cottage Conversion

Project involved partial demolition of 1400 Sq Ft cottage and transforming it  into a permanent home for the owners who were retiring

Aspects included;

  • New addition bringing square footage up to 1850 Sq Ft
  • New HVAC, electrical, plumbing, communication
  • 20’x30’ two car garage
  • New roof and horizontal siding
  • New kitchen, 3 new bathrooms
  • Finished basement
  • New well & Septic
  • Decking and Landscaping
Owners were able to continue to use their cottage during construction. The area’s fine "salt" sand presented an excavation challenge.
home   |   about us   |   projects   |   contact us
444 Champlain Road, Penetanguishene, ON. L9M 1S5 - Phone: (705) 715-3938 - Email ()
Website Designed by Whetham Solutions